NOTE: This page is currently under construction and could possibly change. 

Howard County is holding a public meeting on Wednesday, March 25th from 3:30 to 5:00 p.m. to update the public on our progress toward implementing the Flash Bus Rapid Transit Extension to from Montgomery County to Downtown Columbia in Fall 2026. 

Materials for the meeting are posted below to provide the public an opportunity to review them prior to talking with project staff in-person on the day of the meeting or if they are unable to attend. A feedback survey can be found HERE and will be open through April 7th.  

Additional information on the project can be found at the following project page and an accompanying FAQ page.

Meeting Materials and Boards

Station Designs
Flash Route Maps
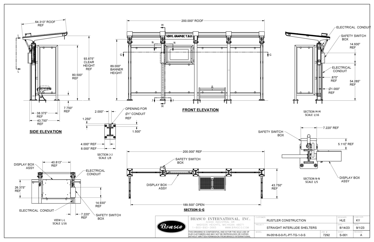
Design Plans
Graphics and Photos

Note: Schematics, plans, or drawings are illustrative and may change based on final design after construction. 

Stay Connected!

Sign up for the County Executive's weekly newsletter and stay up to date on everything Howard County.
 

Zip Code